Angebot

Grosszügige Grundrisse, klare Architektur und hochwertigeMaterialien schaffen ein Zuhause, das Ruhe ausstrahlt und zugleich offen ist für Veränderung.

Die verschiedenen Ausbau- und Nutzungsmöglichkeiten insbesondere des Sockelgeschosses bieten Raum für diverse Lebensformen: ob ein Hobbyraum, Mehrgenerationenhaus mit Einliegerwohnung oder Kellerräumlichkeiten - die Grundrisse sind an Ihre Bedürfnisse anpassbar. In Zusammenarbeit mit den Architekten und der Käuferbetreuung werden die verschiedenen Varianten auf Ihre Vorstellungen abgestimmt und realisiert.

Der Baubeginn ist erfolgt.

Moderne Mehrfamilienhäuser mit großen Fenstern und Terrassen, umgeben von grünen Gärten und Bäumen, vor einem bewaldeten Hügel unter klarem Himmel.Ein Haus zum Verkauf in Böckten.
Lageplan eines Wohnprojekts mit fünf Gebäuden an der Untere Limbergstrasse in Böckten, die Häuser sind teilweise reserviert oder verkauft, einige sind noch verfügbar. Die Karte zeigt Straßen, Bäume, Grundstücksgrenzen und Wege.
    • 5.5 Zimmer

    • 557.0 m2 Parzellengrösse

    • 202 m2 Nettofläche

  • reserviert

    • 5.5 Zimmer

    • 441.0 m2 Parzellengrösse

    • 202 m2 Nettofläche

  • reserviert

  • verkauft

Standardgrundrisse

Sockelgeschoss

Das Sockelgeschoss verfügt über zwei beheizte Zimmer, ein DU/WC, sowie einen Kellerraum und einen Technikraum.

Das Sockelgeschoss kann im Standard belassen werden, nämlich mit zwei Zimmern und dazugehörigem Badezimmer, oder als Einliegerwohnung mit Küchenanschluss eingerichtet werden. Mit dieser Option verfügt das Sockelgeschoss über das Potenzial, als autonomes Vollgeschoss mit eigener Erschliessung zu funktionieren.

Grundriss eines Hauses mit zwei Schlafzimmern, Badezimmer, Küche, Eingangsbereich, Technikraum, Keller und Garten in Böckten..

Erdgeschoss

Das Erdgeschoss ist mit einem Wohn- und Essbereich mit Küche, einem Reduit und einem Gäste-WC ausgestattet.

Es bietet sich die Möglichkeit, ein zusätzliches Zimmer im Norden (Gartenseite) mit eigenem Badezimmer auszubauen. Bai dieser Version wird die Küche auf die Südseite platziert

/ siehe Grundrissvariante in der Verkaufsbroschüre /

Der Grundriss eines Hauses in Böckten mit Wohnbereich, Terrasse, Garten, Küchenbereich, Kamin, WC, Vorraum, Treppe und Begrünung im Außenbereich.

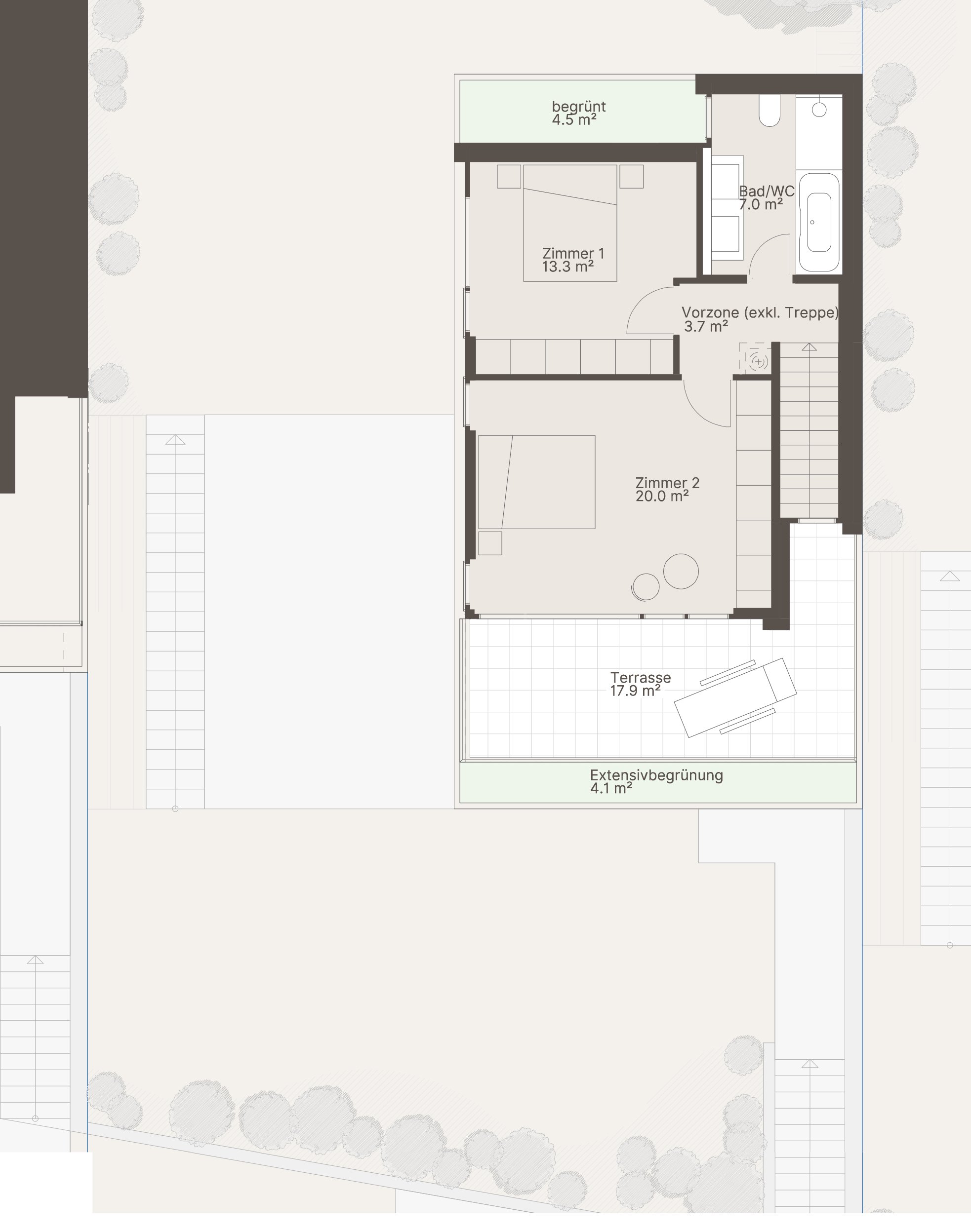
Obergeschoss

Das Obergeschoss verfügt über zwei Zimmer, ein Familienbad und eine Dachterasse.

Als Variante kann im Obergeschoss anstelle des zweiten Zimmers ein Masterbedroom mit Ankleide und Badezimmer ausgeführt werden.

/ siehe Grundrissvariante in der Verkaufsbroschüre /

Grundriss eines Hauses in Böckten mit zwei Zimmern, Terrasse, Badezimmer, Vorraum und begrünter Fläche

Gerne können Sie die Grundrisse der möglichen Varianten bei uns erfragen.

Kurzbaubeschrieb

Tragstruktur

Es handelt sich um fünf Gebäude in Massivbauweise aus Beton. Tragende Innenwände sind aus Beton, Kalksandstein oder Backstein, nichttragende Wände als Gipsständerwände konstruiert.

Gebäudehülle

Die Hülle besteht aus einer mehrschaligen Fassadenkonstruktion mit einer inneren tragenden Schale aus Beton oder Backstein, einer hochwertigen Dämmung mit einer Einbettung und mineralischem Deckputz.

Fenster

Alle Fenster und Fenstertüren werden als Holz-Metall-Konstruktion ausgeführt und sind 3-fach verglast, raumhoch und fertig gestrichen. Pro Raum gibt es mindestens einen Drehkippflügel. Zur Absturzsicherung dienen VSG Gläser vor den Fenstern in den Obergeschossen. Alle bodennahen Fenster haben den Sicherheitsstandard der Widerstandsklasse RC1 N.

Bodenbeläge

Alle Bodenbeläge sind individuell auf die Käufer und das Haus auswählbar. Jedes Haus ist mit Parkett oder keramischen Bodenplatten ausgelegt. Keller-/Technikraum, Garage mit Zementüberzug gestrichen. Die Sitzplätze sind mit Zementplatten belegt.

Schliessanlage

Die Häuser verfügen über eine Sicherheitszylinder-Schliessanlage. Pro Haus erhalten die Käufer fünf Schlüssel für den Zugang zum Haus und den Briefkasten.

Wand- und Deckenbeläge

Sämtliche Wände, welche nicht mit Platten verkleidet werden, sind mit Pinselschlämme gestrichen. In Sanitärräumen sind Feinsteinzeug Wandbeläge im Bereich von Sanitärapparaten gemäss Verlegeplan vorgesehen. Sämtliche Decken sind in Weissputz gestrichen.

Türe

Die Hauseingangstüren werden als Metallkonstruktion farblich auf die Gesamtsituation abgestimmt und ausgeführt. Alle Innentüren werden mit Stahlzargen ausgeführt. Das Türblatt ist in Holzwerkstoff und fertig lackiert. Alle Innentüren sind 210 cm hoch.

Bedachungen

Die Häuser haben ein wärmegedämmtes Flachdach und sind extensiv begrünt. Die Ausbildung der Flachdächer erfolgt gemäss SIA-Norm. Sie sind nicht begehbar. Die Carports sind ebenfalls extensiv begrünt.

Sonnenschutz

Jedes Haus verfügt über motorisierten Sonnenschutz. In sämtlichen Räumen wird dieser in Form von Acrystoffen welche optisch auf das architektonische Gesamtkonzept abgestimmt werden, ausgeführt.

Briefkasten und Sonnerie

Die Briefkastenanlage sowie Sonnerie befinden sich am Standort gemäss schweizerischer Normvorschrift

Lüftungsanlage

Gefangene Räume verfügen über eine Lüftung. In der Küche ist ein Dampfabzug als Umluftbetrieb mit Aktivkohlefilter vorgesehen.

Photovoltaikanlage

Optional gegen einen Mehrpreis kann eine Photovoltaikanlage auf dem Hausdach und/ oder auf dem Carportdach ausgeführt werden.

Heizung

Jedes Haus wird mit einer Luft-Wasser-Wärmepumpe beheizt. Die Raumheizung erfolgt über eine Niedertemperatur-Fussbodenheizung mit Raumtemperaturregelung.

Sanitärinstallationen

Alle Apparate sind individuell wählbar und werden eingeplant. Die Vorauswahl des Architekten dient als Bemusterungs-grundlage des Projektes. Für den Aussenraum hat jedes Haus ein frostsicheres Gartenventil. Die Waschmaschine und der Tumbler (Siemens) sind im UG als Wäscheturm geplant.

Kücheneinrichtungen

Jede Küche wird gemeinsam mit den Käufern, einer Käuferbetreuung und dem Küchenbauer besprochen, abgestimmt, geplant und ausgeführt.

Elektrische Installationen

Die Elektroinstallationen der einzelnen Häuser, sowie der Aussensitzplätze werden in Absprache mit dem Käufer erarbeitet und abgestimmt. Telefon- und Multimediaanschluss in den Wohn- und Elternzimmern. Leerrohre als Reserve für Telefon- und Multimediaanschluss in den weiteren Zimmern. Je ein bis zwei Lampenstellen und dreifach Steckdosen.